【リノベーション】subtitle:可変性のある自然を堪能できる別荘へ
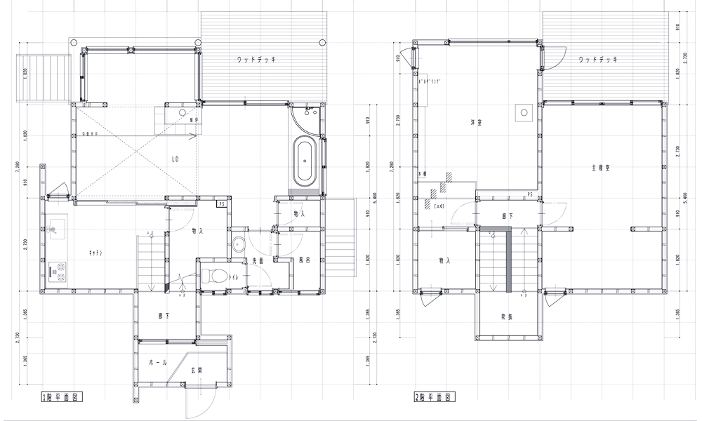
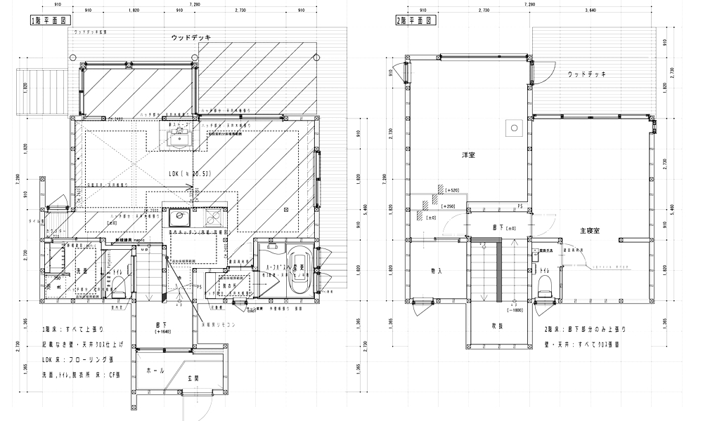
After
before





REQUESTS
一番浅間山が見えるいい場所にお風呂が来てしまっているので間取りから改修して、内装も一新したい。
間取りの使い勝手がイメージしにくく狭さを感じているので変更して使いやすくしたい。
ウッドデッキをもっと広く改修してほしい。
CONCEPT
以前のオーナー様が何度も改修されたことを感じる間取りと、おさまりでやや無理のあるリフォームもされている物件でした。
立地は傾斜地ですが、その分浅間山を見ることができるデッキになっていて、天気が良ければお部屋から浅間山を眺めることもできます。
以前のデッキはやや不安定なつくりだったので、基礎から改修しデッキを大きく拡張しました。
今回改修では既に何度も改修されている物件だったこともあり、構造関係についてはいじらず、間取りの変更をしました。
キッチン等はコンパクトな空間におさめつつお客様のご要望を組み込んだプランニングになったかと思っています。
デッキとのつながりも素敵になり、軽井沢の自然を存分に楽しめるお家にするお手伝いができたかと思っています。
工事内容
・間取り変更・キッチン交換・洗面交換・お風呂交換・床、壁、天井張替 変更・電気引込み変更、照明配置変更
・ウッドデッキ工事 ・給排水配管すべて変更・基礎工事・薪ストーブ入替工事
・造作キッチン ・お風呂ハーフバス(TOTO),檜板張り ・造作洗面 ・トイレ(TOTO)・天井:レッドシダー(マルホン)・床:プレーリーホームズ オーク3層フローリング

